機械設計や製造の現場では、「図面を読める力」が不可欠です。また、正確な図面を作成するには、JIS規格(日本工業規格)の理解が重要です。
本記事では、図面とは何か?その読み方や基本構成、JIS規格の基礎知識について、初心者向けにわかりやすく解説します。

図面とは?なぜ図面の読み方が重要なのか
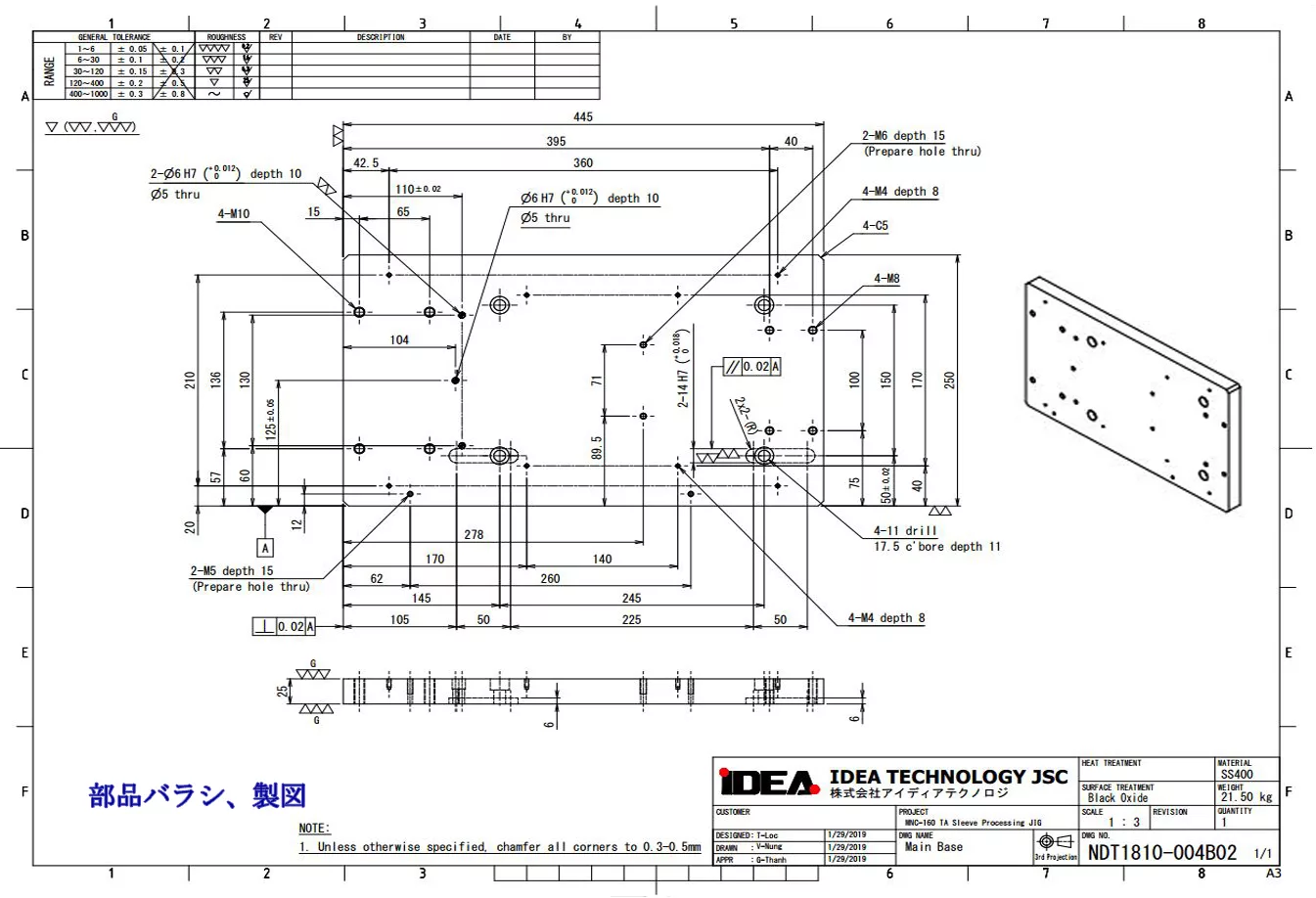
図面とは、製品の形状・寸法・材料・加工方法などを図と数字で表した設計図です。製造現場では図面をもとに部品を作り、組み立てが行われます。図面を正確に読めることは、高品質な製品を作るために欠かせません。
図面の基本構成と要素
図面には、以下のような重要な要素が含まれています:
-
投影図(正面図・上面図・側面図)
-
寸法(長さ、穴の位置、ねじサイズなど)
-
公差(加工許容差)
-
材料(例:S45C、A5052など)
-
表面粗さ(例:Ra値)
-
特記事項(熱処理、塗装など)
初心者でも、基本的なルールを学べば、理解できるようになります。

図面で使われる線種とその意味【JIS準拠】
図面では、線の種類(線種)によって示す意味が異なります。
| 線種 | 意味 |
|---|---|
| 太い実線 | 見える外形 |
| 細い実線 | 寸法線・引出線 |
| 破線 | 見えない部分(内部構造) |
| 一点鎖線 | 中心線・対称の位置 |

JIS規格とは?図面作成における基本ルール
JIS(Japanese Industrial Standards)は、日本国内で製品設計・製造に使われる標準規格です。
図面に関連する主なJIS規格には以下があります:
-
寸法記載方法(JIS Z 8317)
-
線種と意味(JIS B 0001)
-
公差の表示方法(JIS B 0401、B 0405)
-
表面粗さの記号(JIS B 0031)
JISを学ぶことで、正確でわかりやすい図面作成が可能になります。
初心者のための図面学習ステップ
図面を学び始める初心者には、以下のようなステップがおすすめです:
1. 線種の意味を覚える。
2. 三面図(正面・側面・上面)の読み方を学ぶ。
3. 寸法と公差の読み方を理解する。
4. JIS規格の基本を学ぶ。
5. 実際の図面で練習する。
実践課題でスキルアップ
以下のような簡単な課題から始めましょう!
-
穴あきキューブ図面から寸法を読み取る。
-
線種を見て、どの形状が見えているか判断する。
-
「Ra3.2」の意味を調べてみる。
これを繰り返すことで、「図面が読める!」という実感を得られます。
まとめ|図面とJIS規格を基礎から学ぼう
図面とJIS規格は、製造業における共通言語です。最初は難しく感じるかもしれませんが、基本を着実に学べば、誰でも理解できるようになります。
ぜひ、「線種」「寸法の読み方」「JIS規格」の3つを中心に学びを進めましょう。




